952/958 HOWARD AVENUEDUNEDIN, FL 34698
Due to the health concerns created by Coronavirus we are offering personal 1-1 online video walkthough tours where possible.




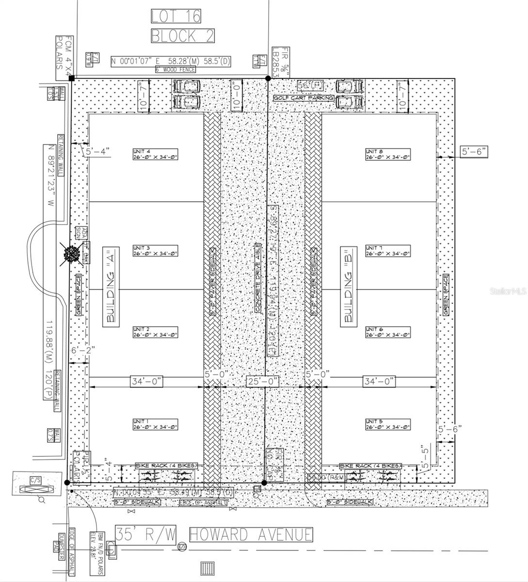
Under contract-accepting backup offers. Downtown Dunedin Development Opportunity – Two Adjacent Parcels Palm Life Realty is pleased to present 952 & 958 Howard Avenue, a rare assemblage opportunity in the heart of Downtown Dunedin. This offering consists of two contiguous parcels totaling approximately 0.32 acres (13,739 SF) with 114 feet of frontage, located within the Downtown Core (DC) zoning district, one of Dunedin’s most flexible and desirable urban zoning designations. The seller has conceptually evaluated the site for a boutique townhome development of up to eight (8) units, with individual unit sizes exceeding 2,000 square feet. Preliminary discussions with the City of Dunedin have produced favorable feedback indicating the concept is viable in scale and character, subject to standard site plan review, permitting, and final approvals. This provides a compelling opportunity for a developer or investor seeking infill density in a walkable coastal downtown environment. The property is located just steps from Main Street, the waterfront and marina, restaurants, breweries, shopping, and the Pinellas Trail, offering future residents or guests an exceptional lifestyle centered around walkability and coastal living. Downtown Dunedin continues to experience strong demand with limited new residential supply, supporting premium pricing for well-designed urban housing. All major utilities are available at the site, including public water, sewer, electric, and cable, helping streamline the development process and reduce off-site infrastructure costs. The property is not subject to HOA restrictions and is located within city limits. Flood Zone X. The Downtown Core zoning supports a range of urban residential and mixed-use concepts (buyer to verify specific uses, density, setbacks, parking, and short-term rental allowances with the City). The combination of zoning flexibility, infrastructure availability, and positive early City feedback on density makes this site well-positioned for near-term development. Whether pursued as a luxury townhome project, boutique residential community, or alternative urban residential concept, 952 & 958 Howard Avenue represent a rare opportunity to secure developable land in one of Florida’s most charming and supply-constrained downtown coastal markets. Buyer to verify all development potential, zoning requirements, and use approvals with the City of Dunedin.
| a month ago | Listing updated with changes from the MLS® | |
| a month ago | Status changed to Pending | |
| 6 months ago | Listing first seen on site |
Listing information is provided by Participants of the Stellar MLS. IDX information is provided exclusively for personal, non-commercial use, and may not be used for any purpose other than to identify prospective properties consumers may be interested in purchasing. Information is deemed reliable but not guaranteed. Properties displayed may be listed or sold by various participants in the MLS Copyright 2026, Stellar MLS.
Last checked: 2026-05-26 07:39 AM EDT


Did you know? You can invite friends and family to your search. They can join your search, rate and discuss listings with you.